Warning: file_put_contents(/home/shjsis0hmjvs/wwwroot/data/cache/license_cache.php): failed to open stream: Permission denied in /home/shjsis0hmjvs/wwwroot/source/model/api.class.php on line 215 电动单梁悬挂起重机【价格 生产 公司】-上海炬神起重设备有限公司
上海炬神起重设备有限公司

产品分类

联系我们

上海炬神起重设备有限公司

联系人:毛经理

电话:021-57468440

传真:021-57468440

手机:13817373111

邮箱:JuShenCrane@163.com

地址:上海奉贤庄行欧洲工业园共兴路2号

网址:www.jushencrane.cn

电动单梁悬挂起重机

您的当前位置: 首 页 >> 产品展示 >> 电动单梁悬挂起重机

电动单梁悬挂起重机

  • 所属分类:电动单梁悬挂起重机

  • 点击次数:
  • 发布日期:2019/06/14
  • 在线询价
  • 详细介绍

20.jpg


LX型电动单梁悬挂起重机技术规格书


1 工程概述


1.1工程名称:天然气液化工程


1.2 业主单位:张家口国储液化天然气有限公司


2、技术规范书


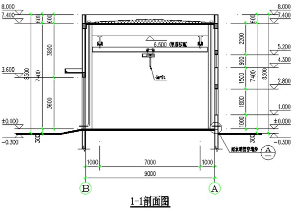
2.1设备名称: LX型电动单梁悬挂起重机(不含电动葫芦)


1、设备位号: 450-5


2、型号: LX


3、起重量: 3T


4、运行速度: 20m/min


5、工作级别: A3~A4


6、材质:厂家按照行业标准执行


7、订货数量:1(套)


8、控制形式:自带控制柜


9、安装方式:室内


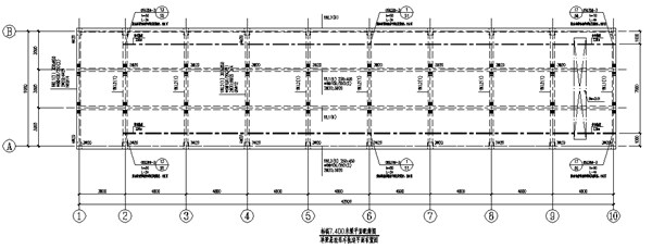
10、安装条件:见附图


特别说明:由于业主已采购了一台CD3-9D型电动葫芦,因此本LX单梁吊车不再配套电动葫芦。


2.2施工、建造及调试


除不属于 供方的工作外,设计文件和国家规范要求的所有采办、运输、制造、建造、安装、组装焊接、施工等工作内容,和/或按照惯例应包括的工作均属 供方的工作范围,达到联合试运和业主接收要求。


供方应按照设计文件要求和国家现行的有关规范、标准、规则、法规、规定、准则、条律、条令的规定完成所有工作。


3 执行标准、质量控制、质保体系


3.1执行标准


《电动悬挂起重机》 JB/T2603-2008


3.2质量控制


要做到产品在使用过程中确保安全性,性能的优越性,首先,设计上必须是做到结构先进,严格按相关标准、规范去设计,既要确保使用安全性能,又能体现其经济性和合理性。其次,必须在制造全过程中各个环节严加控制,使得质量得以保障。通过健全的质量保证体系,对制造全过程设立各个控制环节和控制点,主要为原材料外购件的质量控制、加工工艺控制、焊接质量控制、检验试验过程控制,实行各控制环节责任人员负责制,对质量活动的全过程负责到底,并通过表单、数据的形式记录并作性的保存,可实现对每个设备每个环节的质量追溯。

横线.jpg



产品名称: 产品名称
联系人: 联系人
电话: 座机/手机号码
邮箱: 邮箱
地址: 地址
留言内容: 请在此输入留言内容,我们会尽快与您联系。
验证码:

本文网址:http://www.jushencrane.cn/product/603.html

关键词:

咨询热线:

021-57467488 

新闻中心

联系我们

电话:13817373111

联系人:毛经理

邮箱:jushencrane@163.com

网址:www.jushencrane.cn

地址:上海市奉贤区庄行欧洲工业园区共兴路2号

Copyright © 上海炬神起重设备有限公司   备案号:沪ICP备19014919号

通用门式起重机